Široké spektrum odborných článkov a prezentácie spoločností, odborníkov pôsobiacich v oblasti stavebníctva, dopravy, strojárstva, ťažby surovín a environmentálnych technológií vo všetkých odvetviach priemyselnej výroby.

VÝZNAM NEZÁVISLEJ A INTERNEJ KONTROLY PROCESU PROJEKTOVANIA STAVIEB


Vlastná kontrola procesu navrhovania, prípravy a realizácie výstavby spolu s vnútornou previerkou môžu iba čiastočne nahradiť nezávislú revíziu treťou stranou. Pravdepodobnosť omylov podobne klesá len do určitého rozsahu s kvalifikáciou personálu. V príspevku bližšie analyzujeme obidva aspekty a na príkladoch ilustrujeme potrebu tretej nezávislej kontroly, najmä v prípade náročnejších stavieb.

      Súčasná filozofia navrhovania podľa metodiky medzných stavov s parciálnymi súčiniteľmi spoľahlivosti, príslušnými jednotlivým druhom zaťaženia a materiálom vystihuje potenciálne neistoty vstupných parametrov. Týmto spôsobom zohľadňuje detailne priestorové a časové rozloženie zaťaženia, odchýlky materiálových charakteristík od predpokladaných hodnôt 
a ich náhodný výskyt, geometrické tolerancie nosného systému od parametrov predpokladaných projektom aj nepresnosti výpočtových modelov a z nich rezultujúcich vnútorných síl. Tieto súčinitele vyplývajú z kalibračných analýz a rôznych potenciálnych návrhových situácií. Absolútna bezpečnosť bez výskytu porúch neexistuje. Z ich analýzy však vyplýva, že iba 10 % havárií vzniká v dôsledku chybnej prevádzky, prípadne spravovania. Až okolo 90 % z nich zapríčiňujú chyby návrhu alebo nedostatky realizácie stavieb.

      Ambície uplatniť podobný prístup na zohľadnenie ľudských omylov, na uváženie nepresnosti alebo nedbalosti narážajú na absenciu vyhovujúcich podkladov. Nateraz sporným záverom napríklad zostáva už iba dosah kvalitnejšieho vzdelania na pravdepodobnosť chybného riešenia. Koniec koncov, budova musí byť najskôr naprojektovaná a postavená, aby prípadné chyby 
a slabé stránky sa mohli identifikovať porovnaním s podobnými bezproblémovými objektmi.


ŠPECIFIKÁ STAVEBNÝCH OBJEKTOV

      Stavby v porovnaní s priemyselnými výrobkami skoro zakaždým predstavujú originálny prototyp. Najskôr v dôsledku klimatických a územných zvláštností, ktoré výstavba musí rešpektovať. Architektúra spolu s projektom, ako aj voľba materiálu zase závisia od účelu budovy. Návrh zohľadňuje regionálne a environmentálne zvyklosti. Na rozdiel od iných aktivít má stavebný proces iný systém plánovania, organizácie a realizácie. Navyše ovplyvňovaný individuálnymi nárokmi budúcich vlastníkov alebo investorov. Napokon aj stavebníctvo zaznamenáva neustály vývoj v materiálovej oblasti. Rovnako pribúdajú inovácie a progresívne technológie ako výstupy z výskumu.

      Z uvedených skutočností vyplýva, že skoro každá stavba sa odlišuje od inej. Stupeň opakovateľnosti tak býva neveľký. Vrátane typizovaných systémov, keďže celkovo existujú rozdielne dispozície, klimatické a geologické špecifiká, ovplyvňujúce projektové riešenie. Pritom však typizované stavebné objekty paradoxne vyžadujú viac pozornosti v porovnaní s individuálnymi projektmi. A to z dôvodu opakovateľnosti návrhu a výstavby. 
Z toho vyplýva riziko multiplikačného efektu prípadných ľudských nedopatrení. Tieto nedostatky odlišne ovplyvňujú projektovanie a realizáciu, preto sa obvykle diferencovane kategorizujú.


ĽUDSKÉ OMYLY

      Pod týmto označením sa všeobecne rozumie fakt, že niečo buď chýba, alebo je nesprávne. Teda vôbec nezodpovedá uznávanej skutočnosti. Príkladom môžu byž úplne neurobené určité posúdenia alebo analýzy. Prípadne vykonané celkom nesprávnym postupom v porovnaní s pravidlami alebo logickým numerickým algoritmom.

      Podľa dosahu na proces výstavby alebo nosnú kapacitu konštrukcie sa tieto omyly kategorizujú do niekoľkých typov. Opomenutie označuje chybu, pri ktorej potrebná operácia nebola neúmyselne vykonaná alebo zohľadnená. K nepochopeniu zase dochádza, keď úkon bol urobený nevedome nesprávne alebo nedobre uvážený.

      Iné delenie omylov vychádza z ich charakteru. Pri čiastočnom omyle správne riešenie tvorí iba určitý podiel. Zvyšok nebol korektne urobený alebo zohľadnený. Omyly v rozsahu alebo veľkosti nesprávne uvažujú o dimenziách, resp. vstupných parametroch. Viaceré čiastočné výsledky pri mylnej zámene vzájomne nemusia súvisieť a byť zlučiteľné. Chybný záver z riešenia považuje iba jediný výsledok za správny. Bez alternatívnych prístupov. Viaceré numerické omyly vyplývajú z nenáležitého zaokrúhľovania, zámeny desatinnej čiarky, nesprávnej interpolácie, hrubých číselných nepresností, nedobrého čítania údajov a ich dosadzovania do výpočtov.

      Kompletný projekt alebo jeho časť môžu byť nevhodné 
a nevykonateľné. Teda z dôvodu omylov v nerealizovateľnosti návrhu. Omyl z nepozornosti vyplýva z nespoľahlivej a nekvalitnej práce bez potrebnej opatrnosti. Vedomé vypustenie rozhodujúcej projektovej aktivity alebo jej úmyselné nesprávne vykonanie sa môže považovať za nedbanlivosť.

      Ďalšie typy omylov vyplývajú z dôvodov, ktoré objasňujú ich vznik. Najviac z chýbajúcich vedomostí, skúsenosti a praxe. Ďalej z opomenutia alebo zo spoliehania na iných spolupracovníkov. Neznalosť a povrchnosť môžu vyústiť do vážnych pochybení. Ďalší typ omylov rezultuje z neadekvátne zjednodušeného, a teda nekorektného riešenia. Nakoniec ekonomické obmedzenia a práca pod časovým tlakom takisto ovplyvňujú kvalitu návrhu.

      Opisované nedostatky návrhu a realizácie vyúsťujú do komplexu rôznych dôsledkov. Začínajúc  skrytou a neevidentnou redukciou úrovne spoľahlivosti konštrukčného systému až po stratu stability konštrukčných prvkov alebo všeobecné zlyhanie celého objektu. Niekedy iba vznikom a šírením neprijateľných trhlín a nadmernými deformáciami obmedzujúcimi životnosť stavby a znehodnocujúcimi komfort jej využitia. Rozsah následkov je ťažko prisúdiť jednotlivými kategóriami omylov. Neexistuje spoľahlivý spôsob stanovenia parciálnych súčiniteľov, ktoré by vystihovali odchýlky od ideálneho stavu podobné parciálnym súčiniteľom zaťaženia alebo materiálov.

      Omyly z nedostatku znalostí a skúsenosti môžu napríklad byť podstatne redukované školeniami. Ale úplne ich nemožno vylúčiť, pretože zriedkavo sa opakuje rovnaký projekt alebo stavebný objekt zhodnej konštrukcie. Nová stavba inej koncepcie prináša iné nároky na výkon projektantov, keďže stavebný objekt skoro zakaždým predstavuje prototyp.


 SPÔSOBY REDUKCIE CHÝB

Dostačujúce znalosti odboru a aktuálnej úrovne poznania

      Vyhovujúce potrebné vedomosti a pracovné návyky sú základným predpokladom bezchybného navrhovania a realizácie výstavby. Nestačí však absolvovať príslušný študijný odbor. Nevyhnutná je navyše najmä prax. Rýchly vývoj a s ním súvisiace zmeny si nárokujú celoživotným štúdiom aj neformálnym vzdelávaním udržiavať kontakt s progresom. Minimálne vo svojej profesii. Interdisciplinarita dnešných aktivít predpokladá znalosti aj príbuzných špecializácií, keďže hranice medzi odbormi postupne zanikajú. Skoro každá nová stavebná akcia odkrýva medzery v poznaní.


Vlastná samokontrola vykonanej práce

      Vlastná kontrola zohráva dôležitú úlohu v procese navrhovania a výstavby, preto musí byť prirodzenou súčasťou všetkých aktivít. Umožňuje spočiatku odhaliť a odstrániť relatívne hrubé chyby. Formou opakovanej revízie, porovnávacím výpočtom alebo alternatívnou metódou analýzy. Odkryje pomerne ľahko hlavne číselné chyby. Zostáva však pritom riziko prehliadnutia niektorých menej nápadných hodnôt a opakovania tej istej chyby počas revízie. Niektoré omyly môžu tak zostať neidentifikované. Osobitne pri numerických modeloch uprednostňovaných projektantom a preferovaných výpočtových programoch. Podobne ako na stavbe s okamžite nevznikajúcimi evidentnými defektmi.


Vnútorná firemná kontrola

      Vnútorná kontrola zamestnancom vo firme, ktorý nepracoval na projekte, môže odhaliť chyby prehliadnuté pri samokontrole. Vo väčšej organizácii túto previerku dokumentácie môže vykonávať zvláštne kontrolné oddelenie. V obidvoch prípadoch zaangažované subjekty majú vykazovať rovnaké kompetencie ako odborníci pracujúci na projekte. Vrátane kontinuálneho vzdelávania, podľa najnovších skúseností aktualizujúceho zaužívané metódy práce. V súčasnosti návrh a prípravu stavieb realizujú tiež malé firmy. Iba s dvoma až tromi ľuďmi. Operatívne vypĺňajú čakacie lehoty ponúkané dominantnými dodávateľmi. Niekedy však dobre platenými službami v spornej kvalite. Paradoxne nefundovane kontrolovanej iba investorom. Bez adekvátnych odborných znalostí, ale s motiváciou najnižších nákladov.


Tretí nezávislý posudok 

      Nezávislý posudok treťou stranou príslušnej kvalifikácie 
a s náležitými skúsenosťami eliminuje nevýhody vlastnej a vnútornej kontroly. Ale nezávislosť od investora aj spracovateľa projektu je predpokladom, aby ekonomické tlaky a ostatné spomínané vplyvy boli eliminované. Táto tretia nezávislá kontrola väčšinu chýb zvyčajne identifikuje. Takisto vyznačené nedostatky operatívne odstráni a navrhnuté zmeny v záujme väčšej spoľahlivosti zapracuje.

      V prípade zmluvného vzťahu s dodávateľom a nie investorom klesá miera nezávislosti. Objednávateľ v tomto prípade môže kontrolu nasmerovať zámerne na iné detaily a z rôznych príčin vykonávať tretiu kontrolu pod časovým tlakom. Nezávislé a rozdielne prístupy, kontrola výstupov, alternatívne numerické modely, overovanie iné ako v preverovanom projekte sú pritom konfrontované s pôvodne deklarovanými činnosťami. Ďalej sa postupne preverujú rozdiely, určenie ich príčin so stanovením dosahu na spoľahlivosť stavebného objektu.

      V prípade možnej paralelnej účasti na projekte, iba ako nezávislá výpomoc, tretia kontrola umožňuje zavčasu odhaliť nesprávne postupy a rýchlejšie odstrániť nedostatky. A to bez nadmerného úsilia aj prípadných nákladov.


Zmysel certifikácie a legislatívy

      Certifikácie firiem a inštitúcií, ktoré vykonávajú prípravu stavieb, zvyšuje ich kredit. Čiastočne tiež z hľadiska kontroly prípadných nedokonalostí. Uplatnenie systému zabezpečovania kvality práce a vnútorných procesov iste vylepšuje isté štandardy napomáhajúce redukovať nedostatky. Sprehľadňuje predovšetkým administratívne činnosti. Ďalej evidenciu dokumentov a ich ľahkú opätovnú dostupnosť. Uplatňované systémy kvality sú však všeobecné a priamo nesúvisia so spoľahlivosťou stavieb. Detailnejšie požiadavky z tohto aspektu predpisuje iba norma STN EN 1990 [1].

      Odborná spôsobilosť a autorizácia skvalitňuje procesy realizácie aj projektovania tiež z aspektu obmedzovania porúch stavieb. Významne však presúva zodpovednosť na jednotlivcov, ktorí musia preukázať istú kvalifikáciu a vymedzené skúsenosti. Následne už pri určených kategóriách stavieb sa však nezávislá kontrola nevyžaduje. Ale havárie potvrdzujú, že jedine byť kvalifikovaným pracovníkom niekedy nestačí na vylúčenie situácií, pri ktorých dochádza k nešťastiam.

 

Adekvátna organizácia činnosti

      Najmä pri náročnejších akciách organizačné faktory niekedy skôr rozhodujú o kvalite výstupov ako ľudské činitele. Predsa ani menej skúsení zamestnanci nechodia do práce s úmyslom robiť chyby. Externým odborníkom preto treba zveriť riešenie špeciálnych problémov. Vhodné rozdelenie úloh a s nimi súvisiacej zodpovednosti sa žiada prehodnocovať podľa postupu na projekte. Potrebná spolupráca prebieha prijateľnejšie v prípade už navzájom osvedčených partnerov. Napriek tomu zadefinované míľniky výhodne overujú najmä časové plnenie naplánovaného postupu prác a kritické etapy projektu. S tým súvisí nutnosť správneho obehu informácií, aby potrebné fakty prišli včas a na správne miesto.


 

PRÍKLADY

      Problematika redukcie chýb z dôvodu predchádzania poruchám stavieb zaujíma prioritne investora, prípadne budúceho majiteľa. Zároveň predstavuje dôležitú povinnosť štátu nepripustiť, aby spoľahlivosť stavebných konštrukcií bola predmetom konkurencie pri výberových konaniach. Garancia rovnakej bezpečnosti musí byť zaručená všetkým obyvateľom aj podľa spoločnej Európskej legislatívy. Z toho vyplýva nevyhnutnosť kontroly a preskúmania príslušnej dokumentácie kompetentnými štátnymi úradmi. Už aj v našich podmienkach si vyberajú externé organizácie, splnomocnené úlohou nezávislého overovania dokumentácie a stavebných postupov. Ale s odborným 
a personálnym vybavením, spĺňajúcim definované požiadavky na zadanú revíziu.


      Zrútenie podpornej konštrukcie v druhom poli budovaného mostného objektu na stavbe diaľnice D1 Jánovce – Jablonov [2], už pred ôsmimi rokmi, ako príklad ilustruje uvedené konštatovanie. Zlyhali prvé dva typy kontroly analýzy nosného systému. Výpočet nerešpektoval platnú legislatívu a opieral sa o nemecké normy. Navyše výkresy obsahovali nesprávnu orientáciu profilov stĺpov. Mimochodom, vypracované osobami bez autorizácie. Okrem chybnej polohy absentovalo vzájomné prepojenie stĺpov veží v pozdĺžnom smere mosta. Nesprávali sa preto ako členené prvky, ale vybočili na celú svoju výšku (obr. 1). Prepočet ukázal, že vyššie z nich boli mimoriadne, až štyrikrát poddimenzované. Investorovi sa nepodarilo verejnou súťažou vybrať externý stavebný dozor. Teda ani zaistiť takúto minimálnu formu tretieho spôsobu kontroly stavebných procesov. Iba dvaja zo štyroch interných dozorov mali autorizáciu. Zodpovedný stavbyvedúci bol odborne spôsobilou osobou, ale nie pre inžinierske stavby. Vedúci stavby podperných konštrukcií v poddodávke ani jeho spolupracovníci nemali vôbec odbornú spôsobilosť na výkon činnosti vo výstavbe. Tieto nedostatky by nesporne objavila nezávislá tretia kontrola aj s minimálnym odborným vybavením. S odlišným postupom ako indivíduá, ktoré robili analýzu 
a výkresy. 

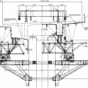
      Betonáž dvoch najväčších mostov v Čadci na diaľnici D3 na úseku Bukov – Svrčinovec prebiehala na podvesenom debniacom systéme pôvodne označovanom Canedo I, navrhnutom nórskou spoločnosťou [3]. Ako ukazuje obr. 2, tento debniaci systém tvoria dva hlavné komorové nosníky s montážnymi nadstavcami a priečnymi priehradovinami, ktoré nesú vonkajšie oceľové 
a vnútorné drevené debnenie. Rešpektuje prierez nosných trámov a mostovkovej dosky s nábehmi. Konzolové podpery na nasledujúcom pilieri a závesný rám už na hotovej konzole slúžili ako podpery oceľových nosníkov. Relatívne komplikovaný systém s hydraulikou a výsuvným vozíkom predstavoval konštrukciu aj so strojárskymi prvkami. Originálny návrh nebol miestami kompletný. Niektoré overenia nahrádzal porovnaním so zaťaženiami na iných mostoch. Podobne analógiou pracoval aj s klimatickým zaťažením, uvažovaným podľa iných predpisov. Tento nezávislý posudok výsuvnej podpernej konštrukcie predstavuje teda ilustratívny príklad toho, ako návrh sa spolieha na mienku a znalosti vnútornej kontroly. Pritom spracovateľ aj kontrolór niekedy neberú na vedomie nové ustanovenia noriem.


Mostné piliere PIŽMO z typizovaných stĺpikov, spojených stužidlami a uložením na nánožkách ukončovali hlavice z dvoch párov roštových nosníkov a na nich uložených štyroch oceľových valcovaných profilov I 500 [4]. Takto zostavovaná podperná konštrukcia umožňovala postupnú montáž segmentov a rektifikáciu priestorovej polohy etapovite narastajúcich konzol. Relatívne zložitá obmena montážneho zaťaženia žiadala identifikovať rozhodujúcu vlastnú tiaž segmentov vahadla, ako aj kritickú polohu montážnej súpravy z oceľovej priehradoviny (obr. 3). Morfológia terénu a premosťované objekty pritom komplikovali dispozíciu podporného systému. Nezávislá revízia dokumentácie a postupu montáže preto doplňovala vlastnú a vnútornú kontrolu o niektoré rozhodujúce zaťažovacie stavy.


      Evidentne iba zriedka dochádza k zlyhaniu konštrukcií z dôvodu extrémneho zaťaženia v kombinácii s ich nedostatočnou odolnosťou. Napriek tomu sa v súčasnosti k problému spoľahlivosti stavebných konštrukcií pristupuje stále prevažne dogmaticky. Po rozsiahlych diskusiách v normalizačných komisiách skôr zanedbateľnými úpravami parciálnych súčiniteľov spoľahlivosti. K haváriám však dochádza hlavne z dôvodu ľudských omylov. Spôsobujú deficit rezerv spoľahlivosti, ktoré nedokážu pokrývať žiadne súčinitele. Príspevok preto odporúča spoľahlivosť spájať hlavne s viacerými kontrolami výstupov z aspektu ľudských omylov.

      Po všeobecnej klasifikácii chýb a ich dôvodov príklady ilus-
trujú dôležitosť nezávislého auditu projektovej dokumentácie a spôsobov realizácie stavebných prác. Pri zložitejších stavebných akciách, tretia nezávislá kontrola nemôže byť vypustená a nahradená iba samokontrolou a vnútornou revíziou. Ani jej absencia zdôvodnená dostatočnou kvalifikáciou spracovateľov, prípadne certifikáciou alebo zavedeným systémom administratívnej kontroly kvality.

      Napriek opísaným súčasným postupom predsa len dochádza k tomu, že dokonca záväznejšie defekty prekĺznu a zostávajú nepovšimnuté. Táto problematika preto vyžaduje ďalšie štúdium, ako aj zavedenie zdokonalených spôsobov kontroly potenciálnych imperfekcií.


Oznámenie

Príspevok bol čiastočne podporený vedeckou grantovou agentúrou VEGA z projektu 1/0343/18.



LITERATÚRA

[1]  STN EN 1990 Eurokód. Zásady navrhovania konštrukcií.

       SUTN Bratislava 2009.

[2]  Znalecký posudok k príčinám zrútenia podpornej konštrukcie 
  v 2. poli budovaného mostného objektu SO 206 – ľavý most

       „Most na diaľnici D1 nad bezmenným potokom v km 5,438 D1 
                 na stavbe: Diaľnica D1 Jánovce – Jablonov I. úsek 
               v km 0,000-9,000“ dňa 2. 11. 2012. USI Žilina 2013.             

[3]  Bujňák, J.: Nezávislý statický posudok výsuvnej podpernej 
        konštrukcie na mostných objektoch  SO 206 & 209 pre stavbu 
 „Projekt diaľnice D3 Čadca, úsek Bukov – Svrčinovec“. 
          SvF ŽU v Žiline 2017.

[4] Bujňák, J.: Pomocná montážna podperná konštrukcia 
                pravého a ľavého mosta SO 209 – 00 na stavbe diaľnice D1: 
    Hričovské Podhradie – Lietavská Lúčka. Statické overenie 
                na montážne zaťaženie. SvF ŽU v Žiline 2016.


prof. Ing. Ján Bujňák, CSc.

Stavebná fakulta, Žilinská univerzita v Žiline

jan.bujnak@fstav.uniza.sk


Fotogaléria k článku